Palacio Azcarate

Plans

Hôtel Apartamentos Palacio Azcarate

demi sous-sol

1 Restaurant Santa Bárbara
2 Jardin Centenaire Cedro « Arbre Singulier », protégé par l’Environnement

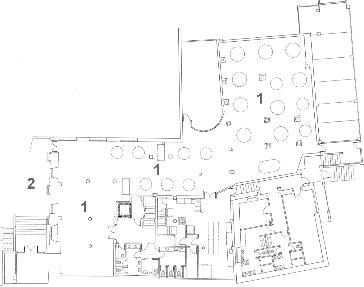
Rez-de-chaussée

1 Jardin de cèdre centenaire
2 Restaurant San Lorenzo, service de menu et petit-déjeuner
3 Hall, réception, café et boissons
4 Cafétéria
5 Jardin de la cafétéria des amoureux
6 L’extérieur de l’hôtel

plano-planta-baja

1er étage

1 Terrasse Solarium.
101, 103, 105 Chambre supérieure avec lit double et option pour les membres de la famille.
102, 106 Chambre supérieure avec lit double.
104, 107 Chambre double Deux lits.
108 Suite.
109 Chambre Double Lit double.

Hotel Palacio Azcárate planta 1

Terraza Solarium habitación 101 habitación 102 habitación 103 habitación 104 habitación 105 habitación 106 habitación 107 habitación 108 habitación 109
2ème étage

201, 203, 205 Chambre Double Supérieure avec Deux Lits.
202 Chambre Supérieure avec Lit Double.
204, 206, 207 Chambre double Deux lits.
208 Grenier avec deux chambres.
209 Grenier avec chambre et séjour.

Hotel Palacio Azcárate planta 2

Habitación 201 Habitación 202 Habitación 203 Habitación 204 Habitación 205 Habitación 206 Habitación 207 Habitación 208 Habitación 209
3ème étage

301, 302, 303 Chambre supérieure avec option pour les membres de la famille.
304 Chambre double.

Hotel Palacio Azcárate planta 3

Habitación 301 Habitación 302 Habitación 303 Habitación 304

¡Celebra la Nochevieja en Palacio Azcárate!

Te invitamos a despedir el año con una experiencia gastronómica única en Ezcaray. Nuestro chef ha preparado un menú especial para adultos y otro para los más pequeños, combinando tradición riojana y cocina de autor.

Aller au contenu principal